Renovation of Old Houses in Benma New Village, Siming District, Xiamen

2020-09-03 Environmental design 1832 3 4

林伟民

China · Environmental design

Renovation of Old Houses in Benma New Village, Siming District, Xiamen

2020-09-03 Environmental design 1832 3 4

林伟民

China · Environmental design

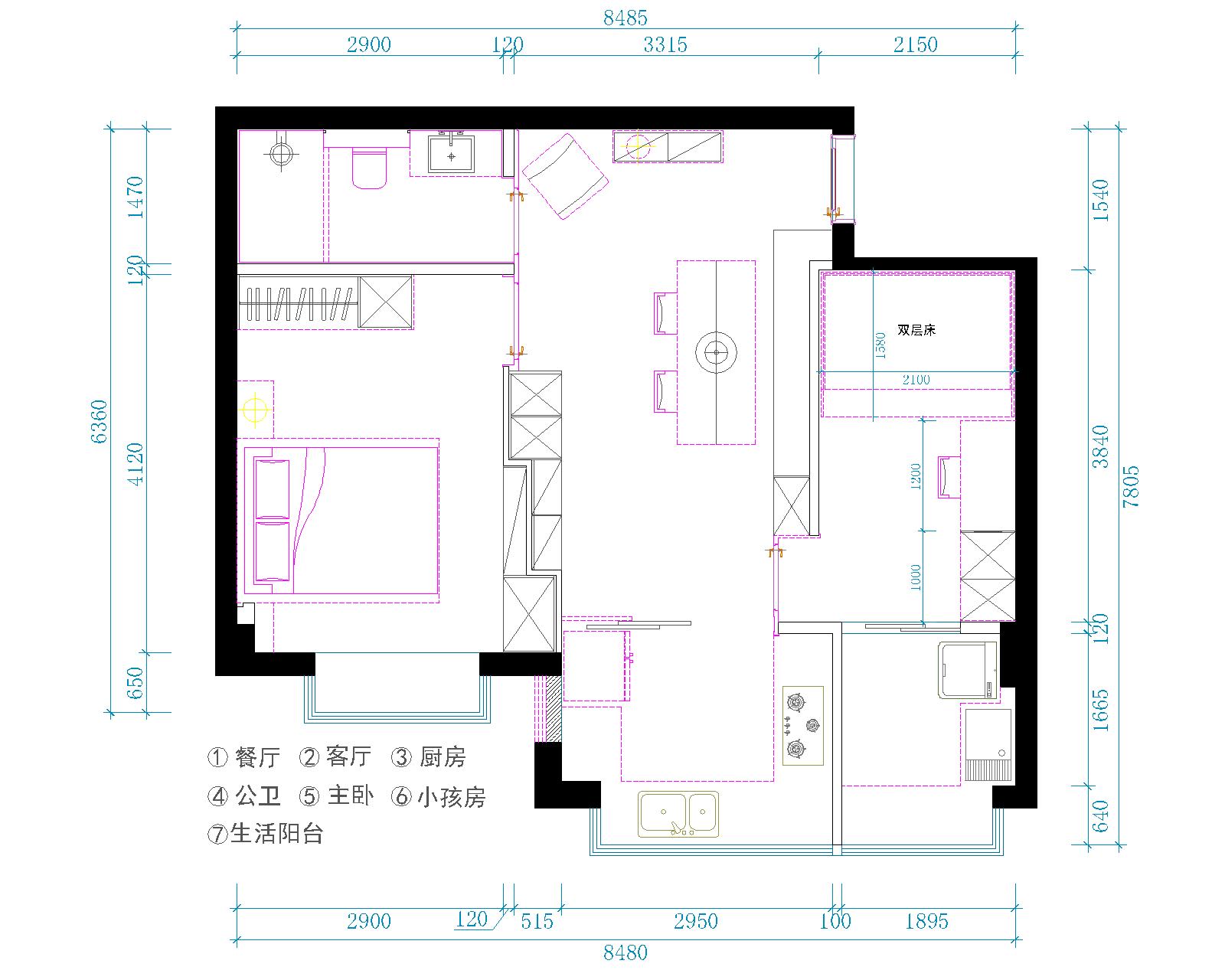
This case is a downtown school district house. The owner's request is very clear. The function is to meet the reading needs of children.

Northern Europe,
Northern Europe,
Northern Europe,
Northern Europe,
Northern Europe,
Northern Europe,
4 2
Users’ other works View More
Comment

Comment Board (3)

扎哈 2020-09-04
Reply

Renovation of old houses?

林伟民 Owner 2020-09-03
Reply

Functional requirements

林伟民 Owner 2020-09-03
Reply

Appreciations Comment Favorites Back to top
Favorites
Create favorites

Create favorites

Favorite's name
Confirm
Online service
Back to top
Send verification code

Create

Read and agree to the User Agreement Terms of Use.

Send verification code

Back Change