2017 Successful Design Contest-"Seclusion" Design Scheme

2017-09-05 Environmental design 1053 0 2

成功设计平台

China · Other Industries

2017 Successful Design Contest-"Seclusion" Design Scheme

2017-09-05 Environmental design 1053 0 2

成功设计平台

China · Other Industries
space,villa,

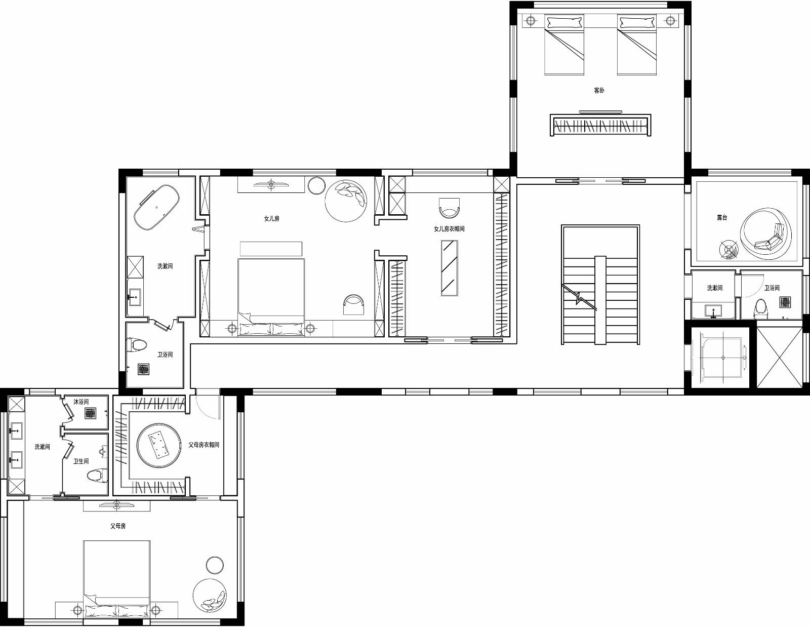
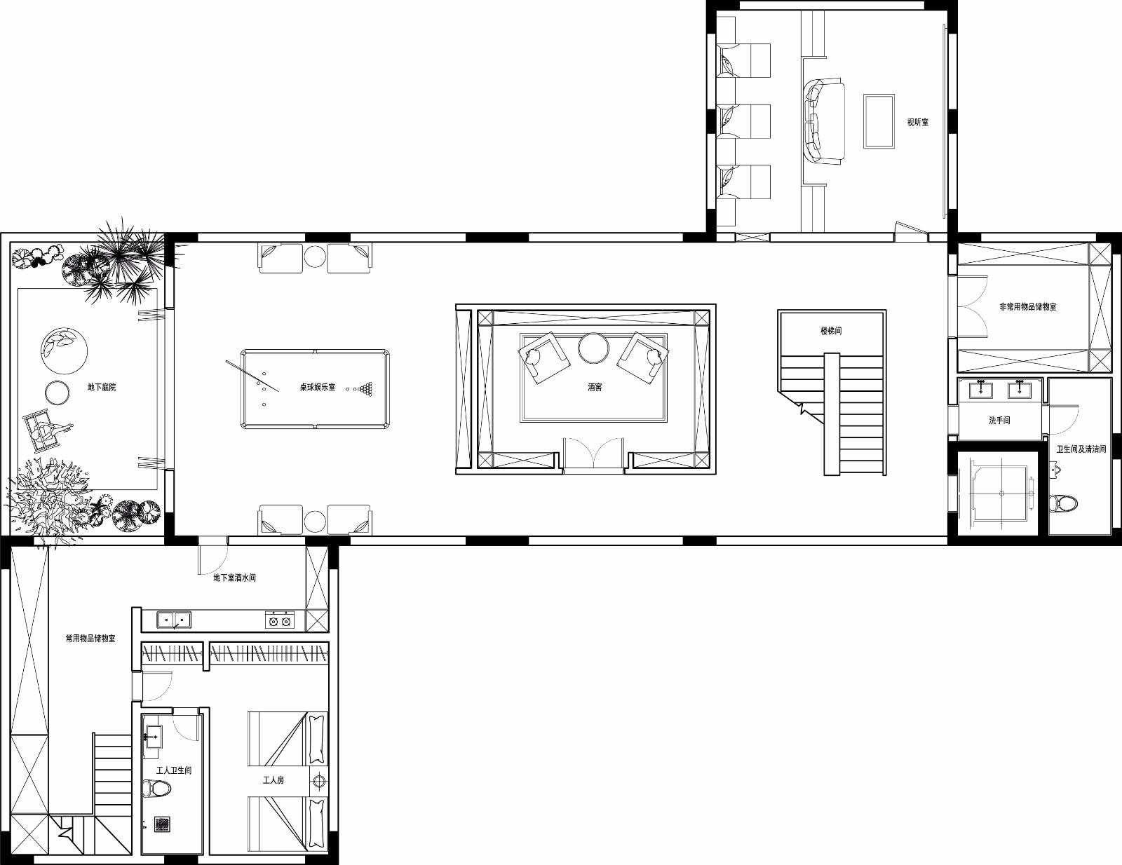
"Seclusion"-Design Scheme Designer | Song Miaosen, Xu Yang Project Location | Yunnan Design Company | Design Category of Origin Decoration Design Office | Main Materials of Modern Style | Wood Grain Reconstruction Brick, Transparent Concrete, Fair Water Concrete, Solid Wood Flooring, Sea Sand, Grey Stone, White Stone, Black Stone, Solid Wood, etc. It is the consensus we have reached with our customers that the scheme should not only be simple and clean, it is also necessary to achieve connotation and novelty, and the concept of "tolerance" is exactly what we need. Green plants, materials, colors and home functionality are all parts we have completed, so we use simplicity, nature and comfort as key words throughout the whole theme.

space,villa,

The simple expression mainly highlights the selection of materials, colors and craftsmanship. We try our best to subtract and keep the empty parts; and the natural expression is not only the configuration of plants, but also the preservation of the shape and material of the building itself to deal with the details. For this, we used sea sand and emulsion mixed paint to treat the exterior wall, and used light-transmitting concrete of the same color as concrete to treat the hot spring pool and stairwell on, or outdoor round pavilions that are directly watered with concrete, there are many applications that will not be given examples one by one.

space,villa,

Comfort is the real embodiment of our quality of life, and quality comes from the grasp of details. In order to improve the comfort of going home, we have added the function of shower room in the cloakroom of the front hall, which not only improves the sanitary conditions but also increases the comfort of going home in summer. The doors and windows of the outdoor toilet in the backyard avoid the overall environment and enhance the comfort of the air. The independent study on the second floor contains almost all, personal office can't be more comfortable...

space,villa,
space,villa,
space,villa,
space,villa,
space,villa,
space,villa,
space,villa,
space,villa,
space,villa,
space,villa,
space,villa,
space,villa,
space,villa,
space,villa,
space,villa,
space,villa,
space,villa,
space,villa,
space,villa,
space,villa,
space,villa,

For details, please go to: http://successfuldesign.org/work/593e5a0be79a805ce0a79ff1

2 0
Users’ other works View More
Comment

Comment Board (0)

Empty comment

Tags

Appreciations Comment Favorites Back to top
Favorites
Create favorites

Create favorites

Favorite's name
Confirm
Online service
Back to top
Send verification code

Create

Read and agree to the User Agreement Terms of Use.

Send verification code

Back Change