Shangfan Architecture | Diexi Gem Exhibition Center

2021-07-02 Environmental design 3262 5 23

上凡建筑一川

China · Environmental design

Shangfan Architecture | Diexi Gem Exhibition Center

2021-07-02 Environmental design 3262 5 23

上凡建筑一川

China · Environmental design

"There are gold and jade in ancient times, and there are colorful treasures today".

In recent years, Diexi Town, Maoxian County, Sichuan Province, has taken gems as the core, deeply cultivated gem culture, developed comprehensive tourism industry, and extended and opened up the gem industry chain. Creating a comprehensive cultural and creative building integrating gem trading, creative research and development, exchange and training, cultural experience and tourism services has become the key work of scenic spot development. In this context, Diexi Gem Exhibition Center came into being. The project is located at the entrance of Diexi Town, Maoxian County, close to the 213 aisle and Songpinggou Scenic Area. It is 230 kilometers from Chengdu in the south and 190 kilometers from Jiuzhaigou in the north. The construction area is 2840 square meters. It is an important node on the west line of the Ninth Ring Road, the only place from Chengdu to Jiuzhaigou.

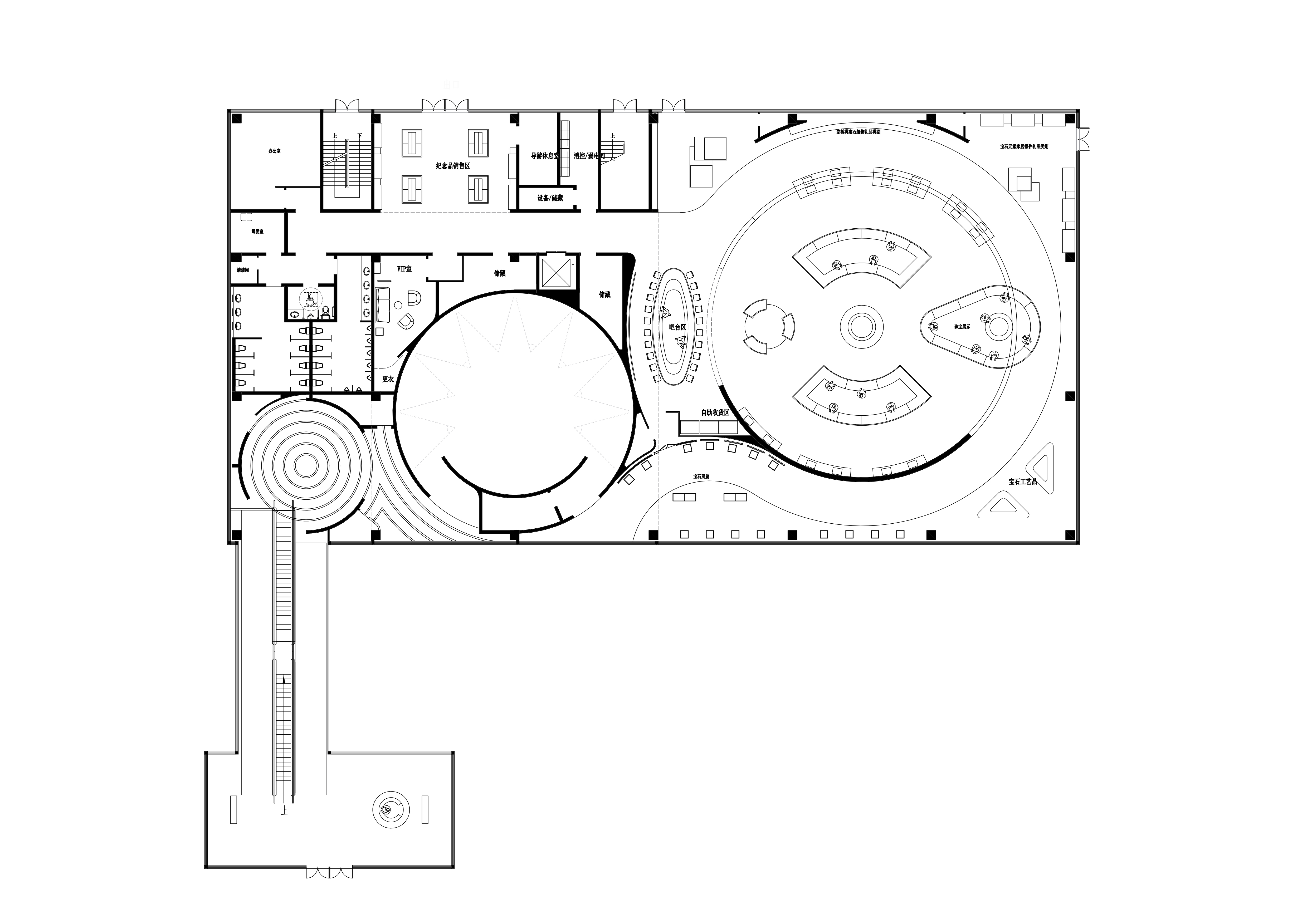
Creating a creative space with "museum temperament" is the design goal we set at the beginning. For this reason, the designer has reserved the most flexible exhibition space to match the possibility of multiple exhibition combinations. In our opinion, the spatial experience of scattered units is limited. Only through path design can the scene-based and story-based deduction be formed, which has an exciting effect.

The spatial form is derived from the nationalized graphics in the story of "Yun Shangyue" to shape the meaning of auspiciousness and beauty. The passage gallery is a flowing space shaped by curved walls with different radii, echoing the shape of the top "ribbon", gathering step by step from the entrance of the exhibition hall to the center of the circle. The changing ceiling lines step by step allow the vertical space to obtain rhythmic changes. The indoor and outdoor boundaries are all high-rise glass, which fully incorporates the outdoor landscape into the interior, and the natural landscape is framed as part of the exhibition.

At the beginning of the design, the architect hopes to find the intersection between the commercial space and the art space: the inspiration for the interior layout comes from the geometric features of "concentric circles", creating a jewelry art exhibition hall with a cordial volume and pleasant scale. Extract design elements from concentric circles and domes, and use the smooth enclosure of multiple circular squares to form a rich and changeable use space to meet the multi-functional requirements of exhibitions, meetings, reception, catering, etc. The checkerboard facade presented by the exhibition hall space enables the building to deduce a geometrical three-dimensional light and shadow effect in the sun. Through the change of wall materials, it creates a spatial feeling that is both inside and outside, and the exhibition hall is thus perfectly integrated into the surrounding natural environment.

Exhibition hall design,Interior design,Shangfan architecture,
Exhibition hall design,Interior design,Shangfan architecture,
Exhibition hall design,Interior design,Shangfan architecture,
Exhibition hall design,Interior design,Shangfan architecture,
Exhibition hall design,Interior design,Shangfan architecture,
Exhibition hall design,Interior design,Shangfan architecture,
Exhibition hall design,Interior design,Shangfan architecture,
Exhibition hall design,Interior design,Shangfan architecture,
Exhibition hall design,Interior design,Shangfan architecture,
Exhibition hall design,Interior design,Shangfan architecture,
Exhibition hall design,Interior design,Shangfan architecture,
Exhibition hall design,Interior design,Shangfan architecture,
Exhibition hall design,Interior design,Shangfan architecture,
Exhibition hall design,Interior design,Shangfan architecture,
23 18
Users’ other works View More
Comment

Comment Board (5)

dwlet 2025-02-09
Reply

Hello, I 'd like to make an internal design of the shopping mall. Is it convenient to add WeChat? 15299215708

2021-07-03
Reply

It's great.

我有一个瘦子梦 2021-07-02
Reply

Great!

CHARMINE 2021-07-02
Reply

The interior design looks very comfortable.

现役熬夜运动员 2021-07-02
Reply

Great design

Appreciations Comment Favorites Back to top
Favorites
Create favorites

Create favorites

Favorite's name
Confirm
Online service
Back to top
Send verification code

Create

Read and agree to the User Agreement Terms of Use.

Send verification code

Back Change