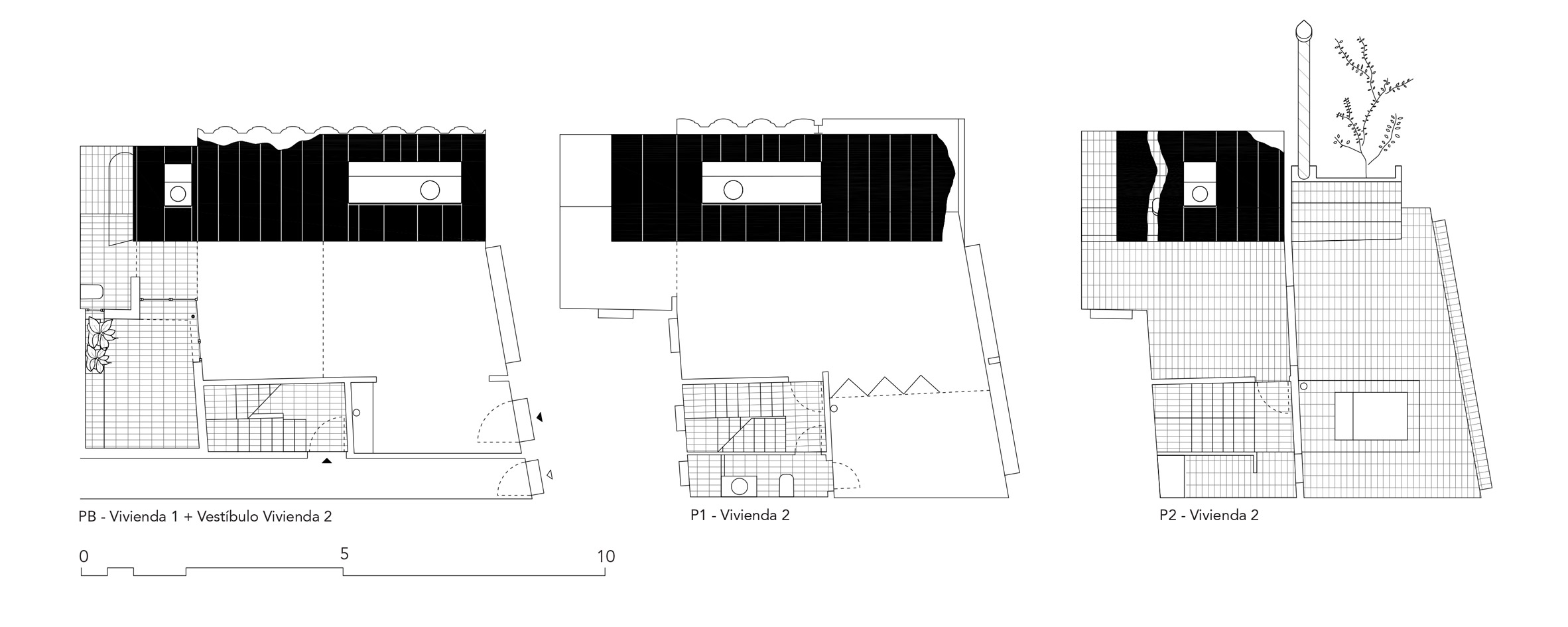
El Guateque——一个由废屋改造的格局神奇的公寓!

2020-05-14 Environmental design 2045 4 6

诗跟远方

China · Office Products

El Guateque——一个由废屋改造的格局神奇的公寓!

2020-05-14 Environmental design 2045 4 6

诗跟远方

China · Office Products
mdf,crack,reform,kitchen,attic,
mdf,crack,reform,kitchen,attic,
mdf,crack,reform,kitchen,attic,
mdf,crack,reform,kitchen,attic,
mdf,crack,reform,kitchen,attic,
mdf,crack,reform,kitchen,attic,
mdf,crack,reform,kitchen,attic,
mdf,crack,reform,kitchen,attic,
mdf,crack,reform,kitchen,attic,
mdf,crack,reform,kitchen,attic,
mdf,crack,reform,kitchen,attic,
mdf,crack,reform,kitchen,attic,
mdf,crack,reform,kitchen,attic,
mdf,crack,reform,kitchen,attic,
mdf,crack,reform,kitchen,attic,
mdf,crack,reform,kitchen,attic,
mdf,crack,reform,kitchen,attic,
mdf,crack,reform,kitchen,attic,
mdf,crack,reform,kitchen,attic,
mdf,crack,reform,kitchen,attic,
mdf,crack,reform,kitchen,attic,
mdf,crack,reform,kitchen,attic,
mdf,crack,reform,kitchen,attic,
6 5
Users’ other works View More
Comment

Comment Board (4)

东东菜 2020-05-14
Reply

很有想法的设计风格

悦大喵爷 2020-05-14
Reply

充分利用了空间

老夫不懂字 2020-05-14
Reply

看起来很有个性

可可之家 2020-05-14
Reply

这个裂缝是亮点

Appreciations Comment Favorites Back to top
Favorites
Create favorites

Create favorites

Favorite's name
Confirm
Online service
Back to top
Send verification code

Create

Read and agree to the User Agreement Terms of Use.

Send verification code

Back Change