Himejima shrine | Sanshuden

2019-12-19 Environmental design 363 0 0

ADP

Other Industries

Himejima shrine | Sanshuden

2019-12-19 Environmental design 363 0 0

ADP

Other Industries

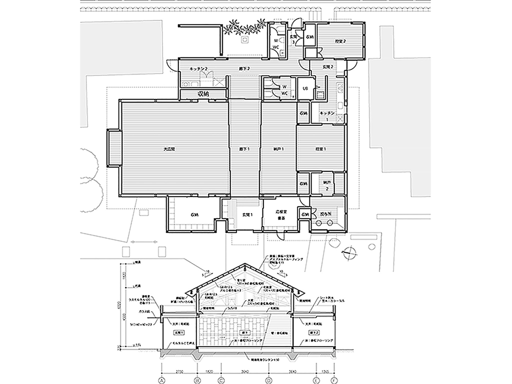
The Sanshuden of shrine rooted in local community has a large hall and office, and structured to respond to diverse needs such as wedding, lecture and art exhibition by softly dividing with "Shoji" made by handmade Japanese paper. Although it is a sacred space, it will use in a casual, The same wood for the wall as structure made it a gentle space. "Chigi" seen in the shrine building don't protrude like horn but sank under the roof and swung diagonally. It will be compensated for stress of the X-Y axes. This shows the long history with the worshiper and the shrine, and it is designed as a "gathering place" that the visitors keep in memory.

asiadesignprize,ASIA,design,award,Products,Architecture,Yijiang,
asiadesignprize,ASIA,design,award,Products,Architecture,Yijiang,
asiadesignprize,ASIA,design,award,Products,Architecture,Yijiang,
asiadesignprize,ASIA,design,award,Products,Architecture,Yijiang,
asiadesignprize,ASIA,design,award,Products,Architecture,Yijiang,
asiadesignprize,ASIA,design,award,Products,Architecture,Yijiang,

Country
Japan

Year
2018

Client
Himejima shrine

Affiliation
Hashiguchi Architect & Associates

Designer
Shinichiro Hashiguchi

[ASIA DESIGN PRIZE]
[www.asiadesignprize.com/]

0 0
Users’ other works View More
Comment

Comment Board (0)

Empty comment

ADP
Appreciations Comment Favorites Back to top
Favorites
Create favorites

Create favorites

Favorite's name
Confirm
Online service
Back to top
Send verification code

Create

Read and agree to the User Agreement Terms of Use.

Send verification code

Back Change