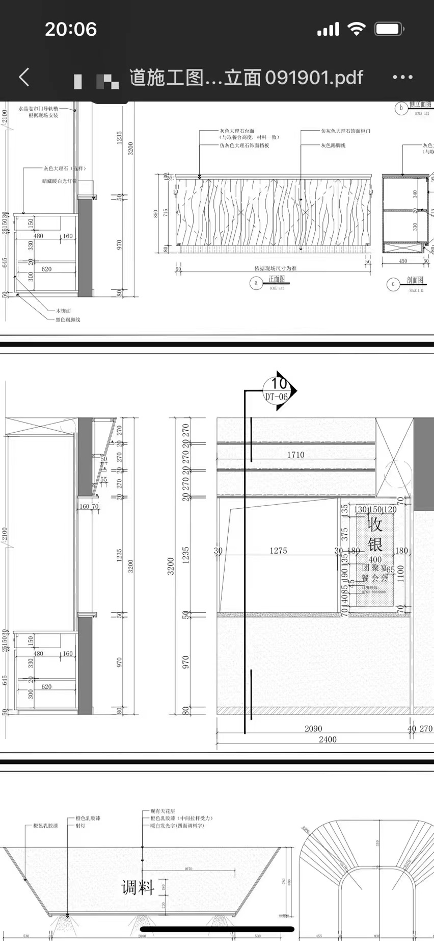
Cashier Area Effect Diagram and Site PK

2022-10-29 Environmental design 886 2 2

知煜空间设计

China · Environmental design

Cashier Area Effect Diagram and Site PK

2022-10-29 Environmental design 886 2 2

知煜空间设计

China · Environmental design

The simulated design effect is compared with the undecorated field effect.
Party A's first draft and all drawings passed
Party A in the north is generous?
Or is the design very NIEC ...... you quality your fine quality?

Catering space design,Interior design,Restaurant chain design,Restaurant,Design,indoor,
Catering space design,Interior design,Restaurant chain design,Restaurant,Design,indoor,
Catering space design,Interior design,Restaurant chain design,Restaurant,Design,indoor,
2 0
Users’ other works View More
Comment

Comment Board (2)

朋克养生 2022-10-31
Reply

The effect is good.

随缘 2022-10-31
Reply

This is actual combat

Appreciations Comment Favorites Back to top
Favorites
Create favorites

Create favorites

Favorite's name
Confirm
Online service
Back to top
Send verification code

Create

Read and agree to the User Agreement Terms of Use.

Send verification code

Back Change